ドラーフタイト工業株式会社
TOP > スリットン > 層間変形試験結果

層間変形試験結果

  • 層間変形試験結果
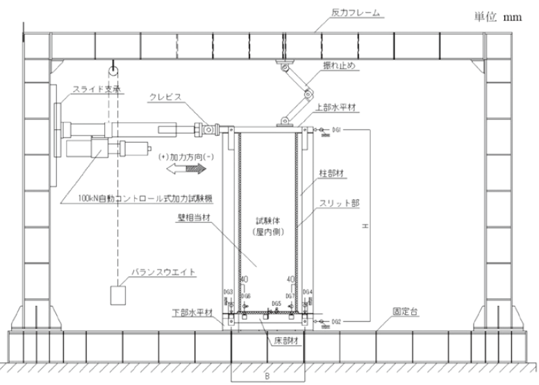
    • ● 層間変形・水密性試験【(一財)建材試験センター 中央試験場】
      ● 試験方法:「機材の品質判定基準(令和2年7月版)」(監修:独立行政法人 都市再生機構)のⅡ.建築編5.スリット材の別紙「スリット材の性能試験方法」の5.層間変形・水密試験に準拠










      ●まとめ
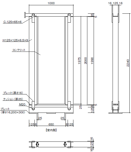
      層間変形角±1/800rad、±1/200rad、±1/100radの各層間変形試験において、スリット材の破断、ずれ等の損傷は認められなかった。
  • 層間変形追従性能
    • 1.建築基準法施行令(令和2年度版) 第82条の2より

      (層間変形角)
      第82条の2 特定建築物の地上部分について、第88条第1項に規定する地震力(以下この款において「地震力」という。)によって各階に生ずる水平方向の層間変位の当該各階の高さに対する割合(次条及び第109条の2の2において「層間変形角」という。)が1/200(地震力による構造耐力上主要な部分の変形によって特定建築物の部分に著しい損傷が生ずるおそれのない場合にあつては、1/120)以内であることを確かめなければならない。

      2.構造スリット施工管理マニュアル (社)建築業協会(2001年10月発行)より抜粋

      2.1.2層間変位追従性能
      スリット部の地震時における層間変位追従性能は次の2段階とする。
      (1)層間変形角1/200(中地震時):損傷を生じない。ただし、シールの軽微な損傷は許容する。
      (2)層間変形角1/100(大地震時):全面的に損傷を生じても、補修により初期性能を回復する。
       なお、シーリング材の性能による目地幅の算定は層間変形角1/300で行うこととする。
       ただし、タイル・石張り等の剥落危険性が高い外装仕上げの場合は、1/100の層間変位が生じても当該仕上げ材が衝突しないよう外部スリット目地幅を確保する。


      3.2020年版建築物の構造関係技術基準解説書 (一財)建築行政情報センター・(一財)日本建築防災協会

      付録1-3.2 剛節架構内の鉄筋コンクリート造腰壁・そで壁等の構造計算上の取扱い
      スリットの詳細
      スリットの詳細は以下による。
      ① スリットの幅は、層間変形角1/100変形時の腰壁・そで壁等の高さ(又は長さ)に対する変形幅を確保する。
      (大地震による応答時にスリットが閉塞しないことが適切に確認された場合を除く)。
       なお、せん断型スリットについては完全スリット型とみなす。
      ② 部分スリット型の目地部の壁厚tsは、tw/2以下かつ70mm以下とする。また、(3)の各式に示す部分スリットの強度は、目地部残存コンクリートの厚さtsに対するスリット幅Wの比(W/ts)が0.5~1.0程度の実験に基づくものであり、この値が0.5以下になると実験と合わなくなるので実験等に基づく性能の確認を行う。
      以下に、完全スリット型及び部分スリット型の例を示す。




      ※スリットンの層間変形追従性能は、上記建築基準法施行令より、全製品1/200(スリット幅25、30mmは、1/100)以上を満足しています。

      スリットンの層間変形追従性能は、上記、法令及び文献を考慮し、層間変形角±1/100radの層間変形を受けても、影響のないことを確認した。
〒196-0022 東京都昭島市中神町2-21-9 
TEL.042(545)6002 FAX.042(545)6008
Copyright(C)DRAFTIGHT INDUSTRY CO.,LTD. All Rights Reserved.