メニュー
トップページ
会社概要
お問い合わせ
メジタック
ドラーフタイト
パラタイト・ピットフォーム
パラブラインド
スリットン
フレキバー・サンマルタイト・ポリタイト
リプラエースR
スリットドレイン
ダウンロード
採用情報
閉じる
TOP
>
スリットン
> 水密性試験結果
site map
水密性試験結果
水密性試験結果
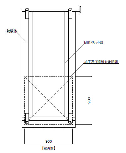
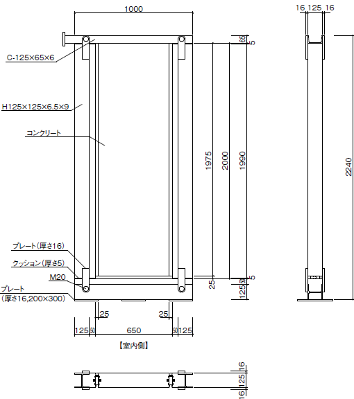
●層間変形・水密性試験【(一財)建材試験センター 中央試験場】
●試験方法:「機材の品質判定基準(令和2年7月版)」(監修:独立行政法人 都市再生機構)のⅡ.建築編5.スリット材の別紙「スリット材の性能試験方法」の5.層間変形・水密試験に準拠
●まとめ
初期性能、層間変形角±1/800rad5回加力後及び±1/200rad5回加力後の脈動圧中央値980Paの各水密性試験において、スリット部から室内側への漏水は認められなかった。
脈動圧中央値1960Pa及び2940Paの水密性試験において、スリット部から室内側への漏水は認められなかった。(層間変形角±1/200rad5回加力後)
防水性能
1.構造スリット施工管理マニュアル (社)建築業協会(2001年10月発行)より抜粋
2.1.4水密性能
スリット部は、1/300の層間変形を受けても所定の水密性能を確保することとし、必要に応じて限界圧力差を980Pa、1470Pa、1960Paに設定する。
2.建築工事標準仕様書・同解説 JASS8 防水工事(2014年11月 改訂版)
4節シーリング工事4.3より抜粋
(ハ)目地幅の許容範囲
設計目地幅の許容範囲を解説表4.5に示す。ワーキングジョイントでは、目地幅がこの範囲に納まるように設定する。
(ii)目地深さの設定
接着面積の不足によりはく離を生じたり、 表層からの劣化により破断に至る危険性 がある。また、目地深さが深すぎるとシ ーリング材の種類によっては、硬化阻害 や硬化遅延による損傷などの発生が予想 される。
ワーキングジョイントの目地深さは、 解説図4.2の範囲に納まるように設定する。
解説表4.5 設計目地幅Wの許容範囲(mm)
解説図4.2 ワーキングジョイントの目地深さDの許容範囲
※1 構造スリット施工管理マニュアルより抜粋
1.1適用範囲より抜粋
(1)建物の構造・規模
一般的なRC造(SRC造を含む)、建物高さ45m 以下、階高4m以下とする。
2.1.4水密性能〔解説〕より抜粋
…一般的には、設計風圧力(正圧)の1/2を水密性能 とするケースが多いことから、本マニュアルにおいて も平成12年建設省告示第1458号または建築物荷重指針・ 同解説(日本建築学会)に基づいて算定した当該スリ ット壁面高さにおける正の風圧力の1/2を水密性能とし て設定することとする。…
※2 構造スリット施工管理マニュアルにおける限界圧力差の評価区分
スリットンの水密性能は、層間変形角±1/200radの層間変形を受けても評価区分Ⅲ(1960Pa)以上の性能を有していることを確認した。
利用規約
|
プライバシーポリシー
〒196-0022 東京都昭島市中神町2-21-9
TEL.042(545)6002 FAX.042(545)6008
Copyright(C)DRAFTIGHT INDUSTRY CO.,LTD. All Rights Reserved.